TOP modernisierte Gewerbefläche (links) - 23554 Lübeck
Objektbeschreibung
Das Gebäude ist Teile eine gepflegten Mehrfamilienhaussiedlung. Die Wärmeversorgung erfolgt über Fernwärme, die Warmwasserversorgung über einen Durchlauferhitzer. Die neueste Gerätetechnik über Funksteuerung ermöglicht eine Ablesung/Prüfung von Rauchwarnmeldern, Heizungs-und Wasserverbräuchen aus der Ferne.
Lage
Scharhörnstr. 33 - 35 - 23554 Lübeck Google Maps
Das Haus befindet sich in ruhiger Citylage im beliebten Stadtteil St. Lorenz Nord (Vorwerk / Falkenfeld). Hier finden Sie alle infrastrukturellen Einrichtungen des täglichen Bedarfs, wie Einkaufsmöglichkeiten, Ärzte, Banken, Schulen und eine direkte Anbindung an die Autobahn A1 sowie an die öffentlichen Verkehrsmittel. Die Innenstadt ist ebenfalls schnell erreicht.
Objektdaten
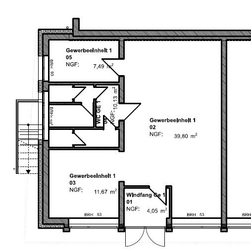
| Objektnummer: | 1000/1508/001/404 |
| Etage: | EG |
| Verfügbar ab: | 01.10.2026 |
Kosten
| Grundmiete: | 876,00 € |
| Heizkosten: | 110,00 € |
| Betriebskosten: | 130,00 € |
| Gesamtmiete: | 1116,00 € |
Energieausweis
| Energieausweisart: | Verbrauchsausweis |
| Endenergieverbrauch: | 159,60 kWh/(m2xa) |
| Warmwasser enthalten: | Ja |
| Energieträger: | Gas |
| Baujahr: | 1964 |